| |
Office Floor Layout Options
|
|

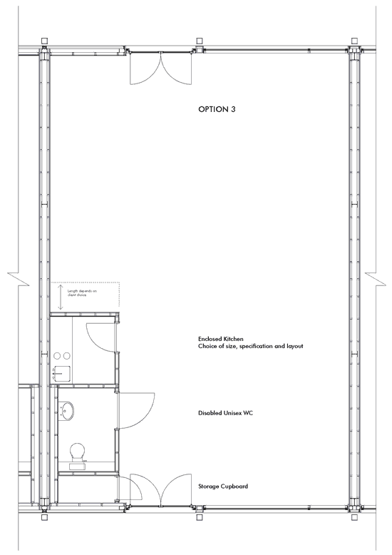
As with Option 2, it is proposed to fit a similar Galley Kitchen unit, to include black laminate doors, stainless steel handles, worktop, sink and backboard.
There is a stainless steel microwave to complement the design and the kitchen also includes 2 electric hotplates with safety timer and a 120 litre integrated refrigerator with ice-box.
Other models are available with a choice of door finishes.
The exact size of the kitchen can be determined by the client and the Gyproc Gypwall partitioning system will be provided accordingly.
This option is available complete with all necessary installation, partitioning and decoration, from £5562 + VAT.
|